Immobiliare+

Fabbricato a sei unità abitative

Nuova costruzione, fabbricato in classe energetica A4 sita a San Vendemiano in via Cavour 12, a pochi minuti dal centro di Conegliano e dall’uscita dell’autostrada A27.

Appartamenti a due o tre camere con logge abitabili.

Impianto fotovoltaico di proprietà.

Ottima esposizione.

Tutte le unità dispongono di posto auto al piano terra e parcheggio esterno esclusivo.

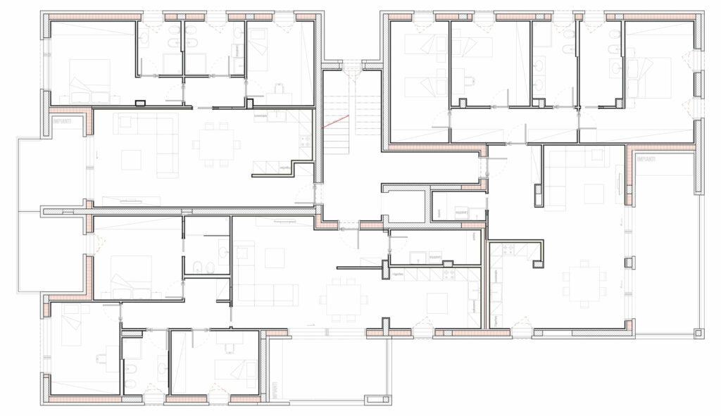
Piante piano terra

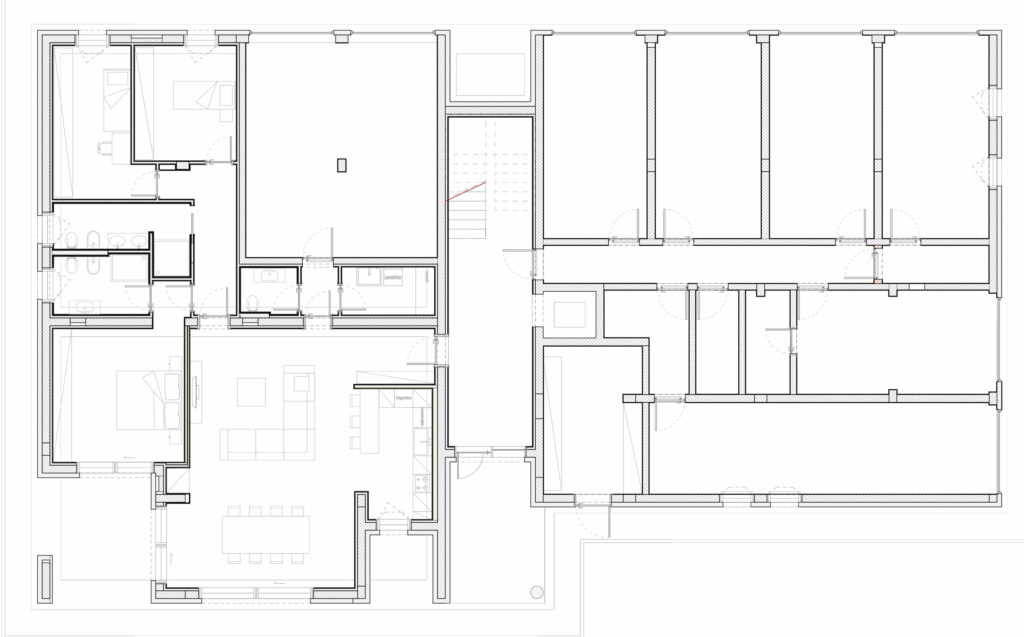
Piante primo piano

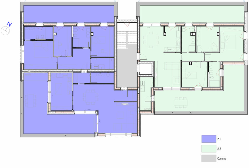
Piante secondo piano

Contattaci per maggiori informazioni

oppure chiama il 339 7835000